Zona Navigli | bilocale su due livelli | riscaldamento autonomo
In Via Ascanio Sforza (Zona Navigli) troviamo in uno stabile d’epoca dei primi del '900, che racchiude l’atmosfera tipica della vecchia Milano, raggiungibile con ascensore, questo affascinante bilocale su due livelli posto al quarto piano.
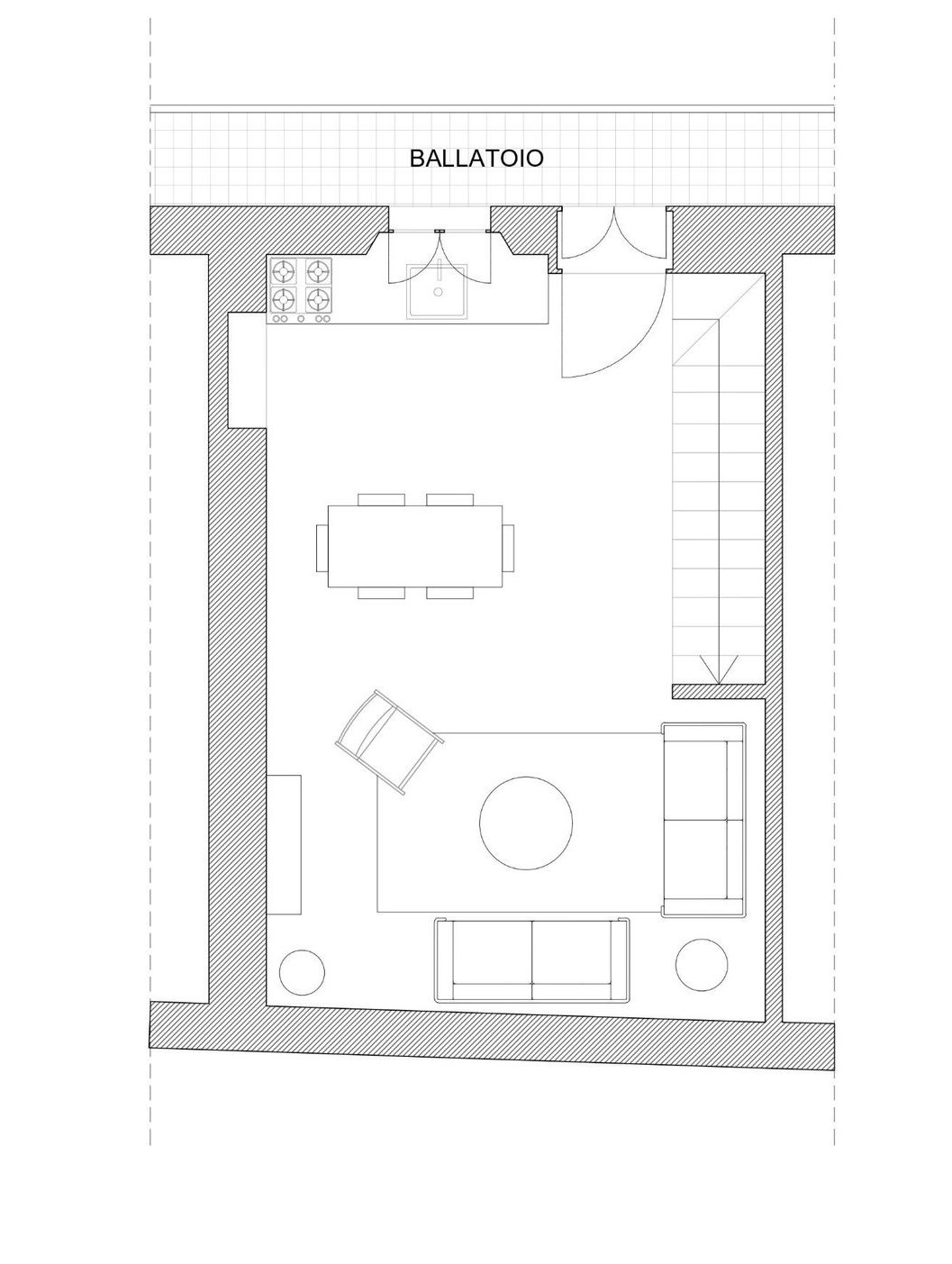
Entrando, ci accoglie la zona giorno luminosa e ben organizzata: cucina a vista finestrata e un’accogliente area living, perfetta per momenti di relax o per ricevere gli amici.
La scala in legno non è solo una via d’accesso al piano superiore, ma anche un elemento funzionale con mensole, vani contenitivi e frigorifero, ottimizzando ogni centimetro.
Salendo, si apre la zona notte, comprensiva di camera matrimoniale con comoda cabina armadio, un bagno moderno e ben rifinito e un riservato terrazzino a tasca, ideale per colazioni all'aperto o piacevoli pause con vista sui tetti della corte.
Caratteristiche:
☑ Riscaldamento autonomo.
☑ Ristrutturato nel 2021
☑ Travi a vista sbiancate, che aggiungono fascino e luce.
☑ Spese condominiali contenute: 700€ annui.
☑ Portineria: mezza giornata.
☑ Contesto interno e silenzioso.
☑ Stabile con ascensore.
☑ Corte curata, abitata e vissuta con rispetto e cura.
☑ Ottimi collegamenti con il centro e le università (Bocconi, NABA, IULM)
☑ Zona ricca di atmosfere Vecchia Milano, a pochi passi dall’Alzaia, da locali storici, bistrot, botteghe e vari servizi.
La posizione è ideale per chi cerca comodità e servizi:
☑ Metropolitana Linea 2 Porta Genova
☑ Mezzi pubblici di superficie
☑ Uffici Comunali
☑ Supermercati
☑ Banca
☑ parco pubblico
☑ Negozi di quartiere
☑ Bar e Ristoranti
☑ Ufficio postale
☑ Scuole